Janak Bhatta

Janak Bhatta

Civil Engineer & Structural Analyst

Residential Complex Design

Cosmos College

Complete structural design of nine storey college building for Cosmos college at Balaju, Kathmandu.

ETABS SAFE Geo5 AutoCAD
Commercial Building Structure

Baneshowr Complex

Complete structural analysis, and design of eight storey commercial complex located in Baneshowr, Kathmandu. The project also features deep soil retaining structures including protection pile, sheet pile and anchorage systems.

ETABS SAFE Geo5 AutoCAD
Bridge Construction

Baglung Hotel

Structural analysis, design and estimation of nine storey hotel purposed in Baglung, Nepal

ETABS SAFE AutoCAD MS Office
Bridge Construction

GBICS Stadium

Review of stadium complex for GBICS located in Chitwan, including it’s structural analysis

ETABS SAFE AutoCAD MS Office
Bridge Construction

Dapcha Hotel

Design and drawing of five storey hotel building for Dapcha Hotel located in Namobuddha. The project also features complex topography and site conditions.

ETABS SAFE Geo5 AutoCAD
Bridge Construction

Lumbini Provincial Hospital

Design of Nepal’s largest hospital building located in Butwal. The 10 storey structure consists of double basement with helipad provision.

ETABS SAFE AutoCAD IdeaStatica MS Office
Bridge Construction

Manav Sewa Ashram

Structural design and drafting of 3 storey elderly home public building

ETABS AutoCAD MS Office
Bridge Construction

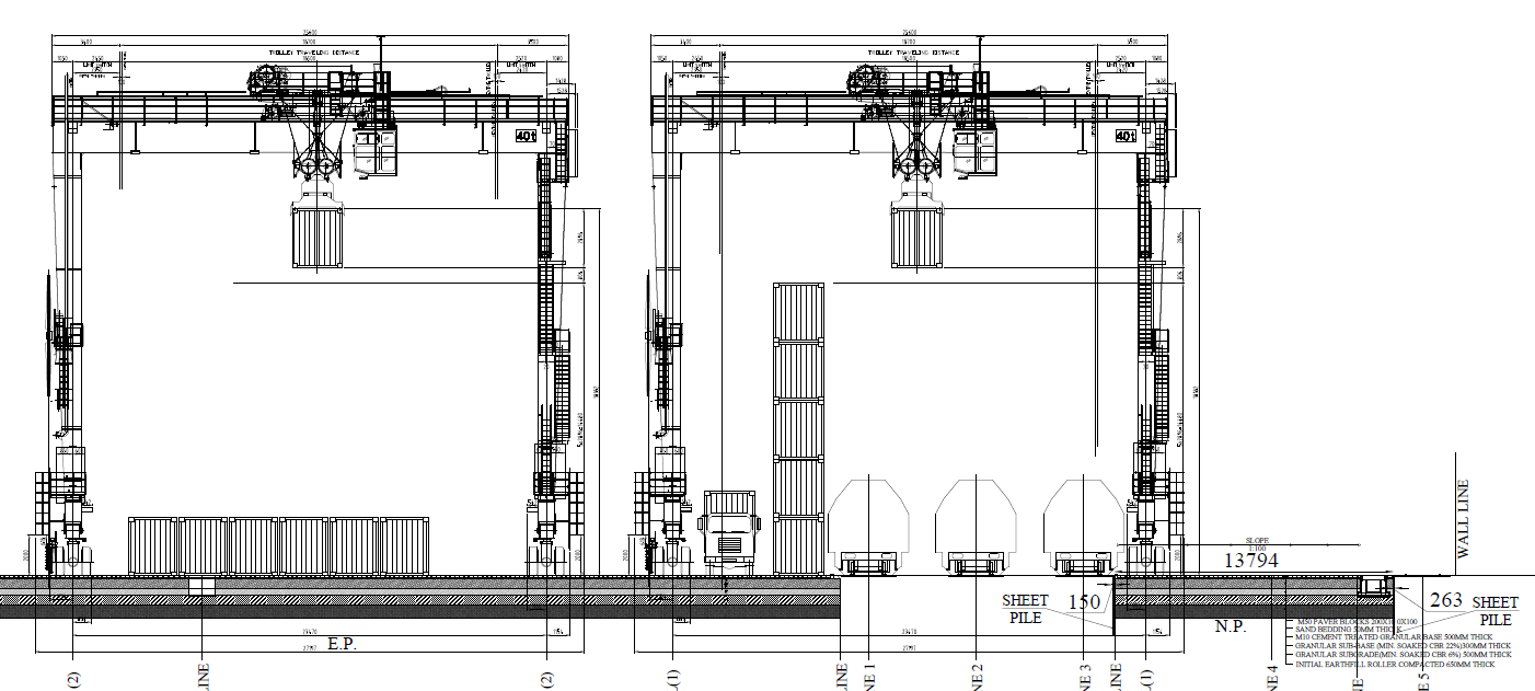
RTG Travel lane

Design and drafting of Rubber Tyre Gantry pavement at Birgunj Dry Port

AutoCAD MS Office
Bridge Construction

Dhapakhel Apartment

Complete structural assessment of building and design of strengthening measures to make it structural resistant. Project also includes design of metal structures as additional components

ETABS Carbon fiber IdeaStatica Geo5 AutoCAD MS Office
Bridge Construction

Rhino Park

Design and drafting of Rhino-shaped two storey building purposed in Chitwan

ETABS IdeaStatica AutoCAD MS Office
Bridge Construction

CEDA Extension

Design of five storey office building for CEDA purposed at Kupondole, Lalitpur. The structure includes pre-engineered steel sections, making it a cost-effective option.

ETABS IdeaStatica SAFE MS Office
Bridge Construction

Fresh KTM

Design of two-storey steel warehouse structure for Fresh KTM located in Kathmandu

ETABS IdeaStatica AutoCAD MS Office
Bridge Construction

Sankhamul Residence

Design of four storey residential building located in Sankhamul, Lalitpur. The building featured irregular geometry.

ETABS SAFE MS Office
Bridge Construction

Bhimsengola Residence

Design of four storey residential building located in Bhimsengola, Kathmandu.

ETABS SAFE MS Office
Bridge Construction

Ujjwal Rana Residence

Design of three storey residential building.

ETABS SAFE MS Office
Bridge Construction

Ullens Bansbari

Design of fire escape staircase with lift for eight storey structure. Post-fire assessment and strengthening works after Gen-Z movement

ETABS SAFE IdeaStatica AutoCAD MS Office
Back to Home